WLV1620JR マンションリモデルバスルームシンラ

このエントリーを含むはてなブックマーク Yahoo!ブックマークに登録

代表図面(DXF)

意匠図・平面図

ダウンロード

品番
WLV1620JR
品名
マンションリモデルバスルームシンラ
税込価格

コメント
WLV1620JR

商品情報

タイプ

Rタイプ

サイズ

1620Jサイズ

表示コメント

表示コメント

WLV1620JR

意匠図(DXF)

平面図

ダウンロード

意匠図(DWG)

平面図

ダウンロード

意匠図(JWW)

平面図

ダウンロード

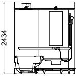
意匠図(DXF)

正面図

ダウンロード

意匠図(DWG)

正面図

ダウンロード

意匠図(JWW)

正面図

ダウンロード

意匠図(DXF)

平面図(短辺入口)

ダウンロード

意匠図(DWG)

平面図(短辺入口)

ダウンロード

意匠図(JWW)

平面図(短辺入口)

ダウンロード

外形図(DXF)

平面図

ダウンロード

外形図(DWG)

平面図

ダウンロード

外形図(JWW)

平面図

ダウンロード

MediaPress, MediaScriptは、TOPPAN株式会社の登録商標です。
このサイトにあるすべての著作物(文字・写真・絵・画像等)の 無断転載を禁じます。