欲しい情報が見つかる100万点の商品情報カタログサイト!ダウンロード無料!!
タカラスタンダード株式会社
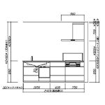
一般ユーザー様向け(キッチン、洗面、浴室、トイレ)キッチンレミュースリム対面プラン2440足元スライド(食洗機付き)Lタイプ
CAD図(DXF)(DXF)
SK-2163.dxf
ダウンロード
CAD図(DWG)(DWG)
SK-2163.dwg
MediaPress, MediaScriptは、TOPPAN株式会社の登録商標です。このサイトにあるすべての著作物(文字・写真・絵・画像等)の 無断転載を禁じます。