SK-1967 SK-1967

このエントリーを含むはてなブックマーク Yahoo!ブックマークに登録

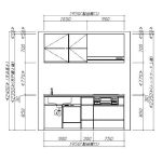
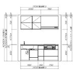
CAD図(DXF)(DXF)

SK-1967.dxf

ダウンロード

品番
SK-1967
品名
SK-1967
税込価格

コメント

メジャースペック

品番

SK-1967

品名

SK-1967

CAD図(DWG)(DWG)

SK-1967.dwg

ダウンロード

MediaPress, MediaScriptは、TOPPAN株式会社の登録商標です。
このサイトにあるすべての著作物(文字・写真・絵・画像等)の 無断転載を禁じます。