SK-1960 SK-1960

このエントリーを含むはてなブックマーク Yahoo!ブックマークに登録

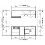
CAD図(DXF)(DXF)

SK-1960.dxf

ダウンロード

品番
SK-1960
品名
SK-1960
税込価格

コメント

メジャースペック

品番

SK-1960

品名

SK-1960

CAD図(DWG)(DWG)

SK-1960.dwg

ダウンロード

MediaPress, MediaScriptは、TOPPAN株式会社の登録商標です。
このサイトにあるすべての著作物(文字・写真・絵・画像等)の 無断転載を禁じます。