SK-1850 SK-1850

このエントリーを含むはてなブックマーク Yahoo!ブックマークに登録

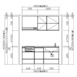
CAD図(DXF)(DXF)

SK-1850.dxf

ダウンロード

品番
SK-1850
品名
SK-1850
税込価格

コメント

メジャースペック

品番

SK-1850

品名

SK-1850

CAD図(DWG)(DWG)

SK-1850.dwg

ダウンロード

MediaPress, MediaScriptは、TOPPAN株式会社の登録商標です。
このサイトにあるすべての著作物(文字・写真・絵・画像等)の 無断転載を禁じます。