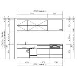
SK-1819 SK-1819

このエントリーを含むはてなブックマーク Yahoo!ブックマークに登録

CAD図(DXF)(DXF)

SK-1819.dxf

ダウンロード

品番
SK-1819
品名
SK-1819
税込価格

コメント

メジャースペック

品番

SK-1819

品名

SK-1819

CAD図(DWG)(DWG)

SK-1819.dwg

ダウンロード

MediaPress, MediaScriptは、TOPPAN株式会社の登録商標です。
このサイトにあるすべての著作物(文字・写真・絵・画像等)の 無断転載を禁じます。